
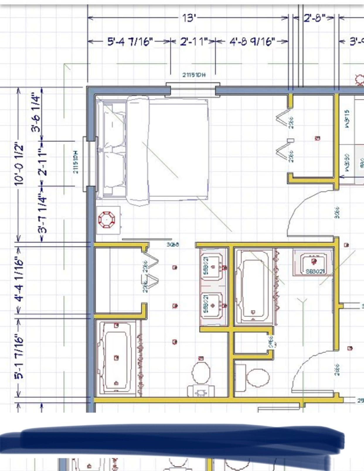
We all know space can sometimes feel like it's a little tight, especially if you're navigating life with a growing family or hosting guests. That's why this project of turning a spare bedroom into two fully functional, stylish bathrooms in East Nashville might just be the inspiration you were looking for.
Our team expertly reimagines layouts into practical solutions - ensuring every inch counts while delivering comfort and style. The idea was to seamlessly integrate two bath spaces where there was once just one bedroom, bringing both functionality and a modern design touch.
From picking the layouts to outlining the fixtures that maximized utility, we've got it all covered like a snug puzzle piece. This meticulous planning ensures you not only get more space but one that's beautifully efficient. Every design decision carefully made reflects our commitment to tailoring dreams into reality.
